• ニュートラルなデザインの家/八尾市 外観・間取り

ニュートラルなデザインの家/八尾市 外観・間取り

造形のよさと、動線のよさがコンセプト
眺めのある高台ならではの建築
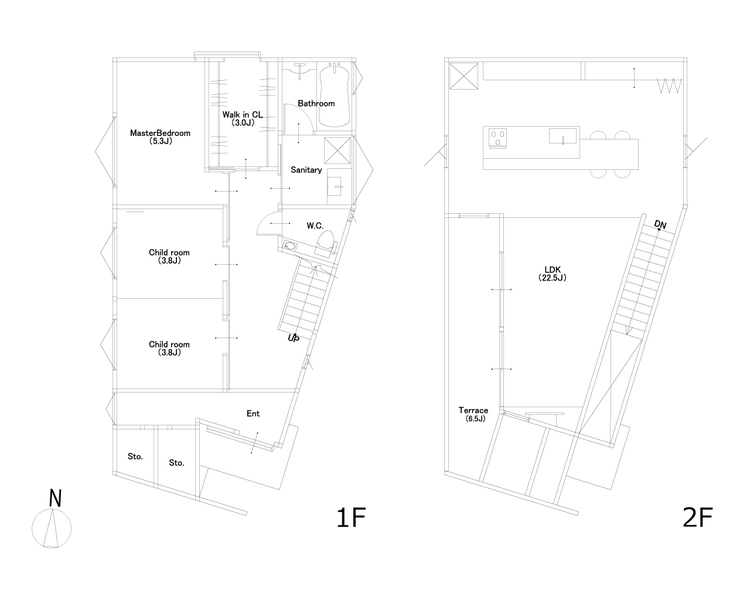
屋内の間取りの線も潔くよくしている
敷地の斜辺を利用して外壁も添うように斜辺に
それがこの住宅の個性にもなり、空間に面白味ももたらした
モダンでシャープなファサード
各寝室の広さにはこだわらず、大切なリビングやダイニングキッチンは広々とさせ、思いきりの良い配分にしている

日常を豊かに暮らすための工夫が散りばめられた住宅となった