• ヴィンテージハウス/大阪市 外観・間取り

ヴィンテージハウス/大阪市 外観・間取り

ご主人好みのシンプルなファザード+奥様が好きなヴィンテージ家具の似合うインテリアが上手く融合しました。
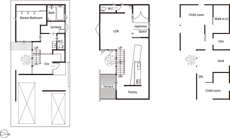
玄関土間の広がりや中庭での寛ぎがご主人様のお気に入り。フランスボルドー産無垢の床を使い建築造作家具に彩られたオーダーメイドな一邸です。
ストレートな動線は寛ぎの邪魔をせず、カフェのようなキッチンから全てを見渡せて、広いパントリー(家事室)で心置きなく下拵えやレシピを検索できます。
収納はかなり多く、4ヵ所あるウォークイン、壁面一杯のクローゼットや吊り収納、畳の下までが全て収納になっています。オープン階段で仕切りのない空間のため、全てLow-eガラス等で開口部の断熱性能を上げ、通風効率を良くする装置として吹抜け上部の窓を利用しています。
機能美を追求した、都市型3階建住宅です。

[参照サイト]
・ヴィンテージハウスⅡ/大阪市